43平米の1LDKマンションに、家族4人(夫婦、2歳と4歳の息子)で住んでいます。
当たり前ですが1LDKなので、リビングダイニング以外に居室はたった1つしかありません^^;
主な生活スペースが2つしかないので、限られた空間をどのように使って、どんな家具をどう置くのか?
とても小さな家を不便なく快適に住みこなすには工夫が必要。
そのために、わが家の空間づくりには基本があります。
それは、部屋と家具の用途を限定しないこと。
そのおかげでたった43平米しかない小さな1LDKでも、大人も子供も快適に過ごすことができています♩
以前にリビングダイニングのお話をしているので、今回はもう1つの居室のお話を。
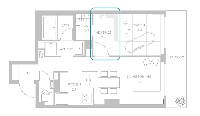
1LDKのキッズスペース
わが家のリビングダイニングは、たったの9畳しかありません。

リビングの壁面には、左側にファミリー本棚、右側には家電を収納しているオープン棚が置いてあります。
ですから、おもちゃを置くスペースはありません。
では、おもちゃをどこに置いているかというと、もう1つの居室にキッズスペースを設けています。

これがわが家のキッズスペース。
約2.3畳あります♩
でも、日中はもっと広く遊べる♩

(2019年7月現在の写真)
なんと、6.6畳。
43平米しかない1LDKなのに、贅沢なキッズスペース!
もう1つの居室をまるごとキッズスペースにしています。
これなら、レールだって敷けちゃうよ♩
街だって作れちゃうよ♩
しかも畳の上だから、防音対策もバッチリ♩
それに、キッチンで作業しながら部屋の様子も見えるから安心^^
ベッド生活から布団生活へ
キッズスぺースにしている部屋は、元々はベッドとベビーベッドを置いて寝室として使っていました。
しかし、次男が産まれる前に、ベッド生活から布団生活へと変更。
正式には布団ではなくマットレス。幅120cmのマットレスを2枚敷いて寝ています。
その際に、フローリングの上に約4畳分の置き畳を敷き、残りの約2畳分にはタイルカーペットを敷き詰めることに。
そして、 畳とタイルカーペットの間に、おもちゃ収納家具をL字に配置することで、キッズスペースと寝室をゆるーく分けています^^

だから、布団を敷いていない時だけ、6.6畳まるごとキッズスペースになります^^
夜は入浴前に布団を敷き、朝も割と早めに布団を畳むので、2.3畳のキッズスペース内だけで遊ぶ時間帯はごくわずか。
寝室に置いているものは布団しかないので、日中は寝室も子供専用の遊び場に♩
ちなみに、タイルカーペットは家具を切り欠いて敷いています。
カーペットの上に家具を置くと、動きやすく安定感もないので、フローリングの上に滑り止めシートを置いて、その上に家具を置いています。
家具が畳とカーペットにきつく挟まれて固定されているので、動く心配もなくグラつきもありません。
部屋を2つの空間に分ける
リビングダイニングから1番アクセスが良い位置に、キッズスペースがあります。

※2019年12月に居室の扉を撤去しました。
図面を見てもわかる通り、クローゼットとキッズスペースが隣接しているので、元々付いていたクローゼットの扉は撤去しました。
居室の変化を間取図で見てみると、

クローゼットの扉がなくなっています。
(2019年12月に居室の扉も撤去しました。)
ベッド生活の時から扉が邪魔と感じていたので、キッズスペースを作った機会に扉を撤去できてとてもスッキリ♩
(現在は出入り口にのれんを掛けています。これがちょっとした秘密基地になって、クローゼット内も子供たちの遊び場に♩)
それに、子どもたちが扉で遊ぶから危なくて…
ほんとは家中の扉を全部なくしたいくらい…┐(´д`)┌
開き扉ってとっても邪魔なんですよね。
小さな家は、壁も大事な収納スペースになるので、扉を開放するために扉1枚分の壁がデットスペースになるのはもったいない。
だから、わが家の扉は入居時から3枚処分しました♩
(持ち家なので、この辺りを自由にできるのが有難い)
すると、もろもろ快適に^^
リビングにおもちゃを置かない、持ち込まない
居室にキッズスペースを設ける前は、リビングに本棚半分、おもちゃ収納半分として使っていましたが、まぁ大変…
やっぱり、ご飯を食べるときは整った空間で食事に集中して欲しい。
だから、必ずお片付けをしてから食事をしていたのですが、そうすると1日に最低3回はお片付けをする必要があります^^;(外出前も片付けるので、1日に何回お片付けしなきゃいけないんだろう…)
これって、親も子もとってもストレス…(´`)=3
子どもだって、造りかけのものを片付けるは嫌だろうし、かといって、これは片付けなくてもいいよという線引きもややこしい。
いっそのこと、リビングにおもちゃ収納を置かなければいい!
それで解決しました♩
別室にキッズスペースを設けるようになってからは、リビングにおもちゃが持ち込まれることが減り、絵本以外に散らかるものがないから、食事前がとってもスムーズ♩
もし、おもちゃが落ちていても、子供たちが進んでおもちゃを別室に持って行ってくれます^^
整った空間で食事、という習慣が身に付いているようです♩
ですから、「リビングにおもちゃを置かない、持ち込まない」これが、わが家のルール^^
と、言いたいところですが、たまに侵食してきます…(´`)=3
まぁ、多少は目をつぶりながら、穏やかに過ごすことも大切♩
おもちゃを片付けるのは、1日に1回だけ
別室にキッズスペースを設けてからは、リビングが乱れにくくなり、ストレスがなくなりました^^(絵本はたまに散乱しますが、片付けが簡単なのであまり気になりません)
そのかわり、キッズスペースはよくおもちゃが散乱していますが、まったく気になりません。
存分に散らかして遊んでいいよ♩と、大らかな母でいられます^^
(もちろん、近所迷惑になるような激しい遊びはNG!)
それにわが家では、おもちゃを片付けるのは、入浴前に布団を敷く時の1回だけ。
(ただし、おもちゃが散乱しすぎて遊びの妨げや怪我につながりそうな時は、片付けを促します。)

これは、長男が幼稚園に行く前に作っていった線路。
せっかく作ったのに片付けてしまうのは可哀そうなので、帰宅するまでそのままでOK♩
休日にお出掛けする時も、おもちゃは片付けずにそのままです。
理由は、大人だって仕事や家事をやりかけのまま休憩したり、食事をすることもあります。
子どもの仕事は遊ぶことだから、おもちゃは子どもの仕事道具。
それは子どもの遊びも一緒だと思っています。
それに、片付けを促すのって、親も大変^^;
1度言って片付けてくれたらいいけれど、なかなかそうはいきません(´`)=3
そうすると、イライラが溜まって爆発…
そうなる前に、子どもが散らかしても気にならないスペースを確保して、片付けの回数を減らすと、お互いにストレスフリー♩
たった1回の片付けでさえもイライラしてしまう日があるから^^;
だから、おもちゃを片付けるのは、基本的に1日に1回だけ♩
家族の空間、子供の空間
リビングダイニングは、家族の空間。
もう1つの部屋は、子供の空間。
大人も子供も心地よく快適に暮らすためには、メリハリをつけることが大事^^
たまに、 リビングにおもちゃが侵食してきた時は、
「リビングは、絵本を読んだり、テレビを見たり、ごろんとくつろいだりするところだよ。だから、おもちゃは畳の部屋で遊ぼうね♩」
笑顔を心掛けつつ、念押しの日々です^^;
↓ 2019年12月に居室の扉を撤去したので、子供のフィギュア棚を設置しました♩